Direccion

Avenida Belgrano N° 4095- Villa Domínico

Telefono

(011) 4207-4197 / 15 6168-4544 /11 5334-0587

Whatsapp

1161684544

Volver

Volver al listado

Oportunidad

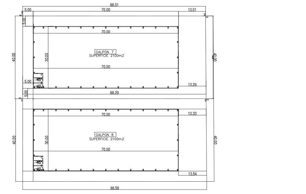
DOS NAVES LINDERA EN ALQUILER DE 4200 M2 TOTALES CUBIERTOS - PARQUE INDUSTRIAL PIBERA - BERAZATEGUI

direccion Pibera, Hudson destacada Propiedad destacada

Alquiler

USD 24.000

Características
tipo Depósitos / galpones
superficie Sup. cubierta 4200m2
superficie Sup. total 7148m2
Acerca de la propiedad

DOS NAVES EN ALQUILER LINDERAS cada una de 2.100 m2 haciendo un total de 4.200 M2 CUBIERTOS - DENTRO DEL PARQUE INDUSTRIAL DE PIBERA - BERAZATEGUI. 

CONJUNTO EDILICIO, CONSTRUIDO SOBRE:

Sup. Terreno  Lote 7             3537m2
Sup. Terreno  Lote 8             3611 m2
    
CADA UNO DE LOS LOTES CONSTA DE:
 
Sup. Piso Industrial                  2640  m2 (TOTAL UNIFICADO 5284)
Sup. Naves Trabajo                 2100  m2 (4200 m2 LAS DOS NAVES)
Sup. Baños y kitchenette        36 m2 (72 m2 LAS DOS NAVES)
 
 
El conjunto fue diseñado con un añillo vehicular que permite su interconexión.
Toda la construcción se asienta sobre un relleno de tosca compactada, suelo cemento y un pavimento de Hº.Aº. de 20 cm. de espesor, microfibra para lograr una mayor resistencia en el hormigón y acabado superficial con endurecedor, característica apta para los más exigentes requerimientos de industria pesada.
Consta de un acceso vehicular.
 
MOVIMIENTO DE SUELO

El movimiento de suelo consta de tres etapas:
El desmonte, suelo vegetal respetando como cota nivel cero de la calle.
Entoscado, aporte de suelo seleccionado en capas finas compactado, hasta un nivel de 35 cm, con un nivel mínimo de compactación de un 96%. Incluye estudio de suelo, con certificado.
Suelo cemento, capa final de suelo cemento de 15 cm de espesor compactado y cortado, listo para recibir el piso de terminación. 
 
MICROPILOTES INYECTADOS
 
Se realizar 2 micropilotes inyectados por cada base. El diámetro de perforación es de 0.25m. Longitud de perforación del micropilote 6Mts. Unidos por un canasto de acero redondo del 16” para colocar las jotas y posteriormente las placas de anclaje.
 
 
NAVE
 
La nave principal cuenta con una superficie de 30.00 x 70.00 altura mínima a fondo de cabreada de 11.30 m. y 4 portones de 5x5 cada uno. Altura total de la nave 14.00m
Las naves cuentan muro perimetral (h. 2.40 m.) de bloques de hormigón texturado. Continuando con chapa prepintada con su correspondiente aislación térmica, iluminación y ventilación natural.
Se ejecutará en chapa armada, soldada por sus cuatro ángulos en un tren automático de soldadura continua de arco sumergido, conformando perfiles doble T, tratada con anticorrosivo sintético.
La estructura se completa con correas tipo C galvanizadas
 
 
CUBIERTA
 
Se realizará los 2100 m2 chapa sinusoidal cincalum calibre BWG 25. La fijación al entramado de correas se efectuará mediante tornillos galvanizados tipo Parker, arandelas del mismo material según este tipo de onda y arandela de contacto de neoprene entre esta y la cubierta.
La recogida de agua del faldón se efectuará mediante canaletas interiores de chapa galvanizada calibre BWG 25, según plegado especial para este tipo de cubiertas y boquillas de empalme para las bajadas pluviales.
Bajadas de caño de PVC de diámetro 160mm.
 
CIERRE LATERALES
 
A partir del nivel de +2.40m hasta el nivel de cubierta copiando su forma, se ejecutarán 2151 m2 de cierre de chapa T101 color blanca, ambas de calibre BWG25, fijadas a las correas horizontales tipo C, mediante el mismo sistema de tornillos Parker que la cubierta.
 
AISLACION TERMICA
 
En los 2100 m2 de cubierta se considera un manto de lana de vidrio de 50mm de espesor, con laminado de papel Kraft y lamina de aluminio con refuerzo de hilo de vidrio con película exterior de polipropileno termo pegado, que actuara con aislante térmico y barrera de vapor.

Ubicación
Consultar por propiedad
Dos Naves Lindera En Alquiler De 4200 M2 Totales Cubiertos - Parque Industrial Pibera - Berazategui
Alquiler
USD 24.000

Comunicate con nosotros

error

error

error

error


Propiedades relacionadas
Chatea con nosotros situacion
contacto No dudes en contactarte con nosotros contacto
Whatsapp WHATSAPP telefono LLAMAR
Comunicate con nosotros

error

error

error

error